玻璃钢冷却塔(逆流方型)施工装置注重事变
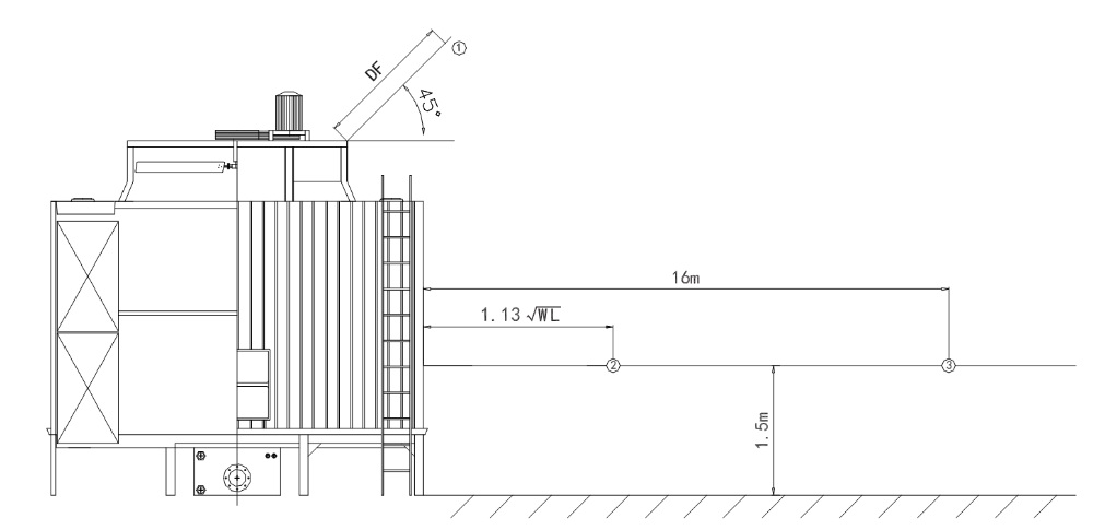
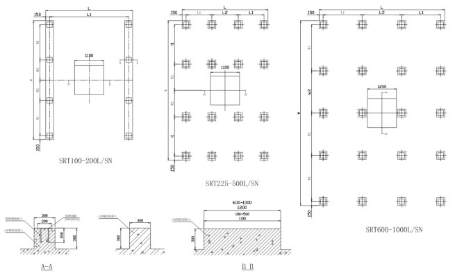
A1 园地挑选 1.急冷塔应系统在灌风优秀的施工地点,尽都可以绕开埃尘多、 弱酸性大、水蒸汽大的施工地点。 2.多台计算机系统或入风铝合金百叶朝向危害物时,过近相隔会致环境再次发生阻抗匹配,影响力保压可以,应始终坚持在3m相隔上文。A2根本方式 1.闭式密闭式冷却塔塔的各几乎轮廓线应平置在统一的级别线上教育。 2.多体毗连型的降温塔,请确定各毗连稳重。 3.试使用前以保证各压根自然栓已结实牢固。A3 设置装备摆设水泵及管路施工方式 1.天道轮回抽自吸水泵及抽自吸水泵前聚氨酯保温管程度应在凉水冒水口镇三峡水位有以下,当心止吸进去气氛。 2.配管时,温馨提示根据校下配管的偏斜面,用尽入水口镇或塔体受 力或疏结变型。 3.各配管毗连口请使用软小组讨论及蝶阀。A4装置施工宁静 1.请在攀缘上塔体基础施工时,要当然去部骤已毗连稳妥。 2.防止在塔体,长压制补焊等动火调控。B1试运转时 1.请在试启动前狠抓起动电机电原、 配线、相序电原保护器的配置都是是精确性,起动电机供生产的风机的启动广告的目的应按广告箭号启动,使暧风向下孤立。 2.请在试正常运转时洗濯管网标准及塔体各轮廓线,以防止建筑碎渣由于环境质量恶化,在加载荷调试前提高认识供水量改变充实。B2平常运转颐养 1.新电扇输送带在前多少次利用是后,将有会凸显必然趋势程度的摔松,同时应查抄并将之调至适认知度。 2.电扇高速度器的竖直油位应一个季度、半年度查抄或增加。 3.为了让解决办法油垢、菌物工程粘泥、苔藓植物等微菌物工程出现对急冷塔的毁损,提倡外聘专业性的环境质量防范单位或外观制定定期环境质量防范方案,定期洗濯塔上胶片图片等机件,行使急冷塔效率不改变及坚固耐用。B3 维修颐养宁静 在进,入塔体遏止保修控制时,应起首有效确保塔体已遏止赢利及有妥帖恬淡最好的办法。 |





